在乡村搭建房屋,是好些人内心中最为笃定的一种念头。瞧过了上千幅图纸,挑选了数不清的方案,有时反倒忘却了起初触动自身的是何种模样。实际上最为经久耐看的,常常便是那几款简约且实用的设计,它们无需太过繁杂,却能够容纳我们所期望的生活。

以下几款别墅农村别墅大门,是今天要说的,其面宽大概在12米左右,这样的尺寸对于农村宅基地而言颇为合适。它们之中,有的带有田园风格,有的呈现现代风格,有的带有些许欧式味道,然而,它们都存在一个共同特征,那便是将舒适以及实用置于首位。

第一款这是一座小楼,小楼开间为十二米,进深为十点五米,它共有两层,外墙是米白色的,屋顶则是深灰色的,这种搭配在村子里极为常见,然而每次看到时都会让人感觉颇为舒适。小楼有着大窗户以及推拉门的设计,如此一来屋里的采光相当良好,白日里基本上无需开灯。门口有一对双开木门,这对木门极具特色,推开这扇门的刹那间,似乎就能够嗅到院子里花草所散发出来的味道。楼上楼下总共具备六个房间以及两个客厅,即便一家三代共同居住于此,也会显得足够宽敞。




院子在房子外面,露台也在房子外面,它们被收拾得干干净净,平常晒被子很方便,晾衣服也顺利,早上起床后于露台伸展身躯,傍晚搬椅子坐下观赏夕阳,日子就这样一天天过得安稳又舒适,它的设计不炫耀,每个细节却都顾及到了农村生活的实际需求。

第二款有这样一栋房子,它内部开间的尺寸是 13 米,进深的尺寸为 11 米,人一进入房门,便能够体会到与寻常不同的那种气派感觉。其外墙的颜色是米白色的,并且搭配着罗马柱,致使整个房子看上去显得格外蕴含分量。这种房屋的设计样式在农村地区极其受到欢迎,原因在于大家普遍都认为房子要是显得气派了,那么居住起来也就会觉得有面子。这栋房子具有一个超大的落地窗,它成为了这栋房子的突出亮点之处,当阳光透过玻璃照射进屋内的时候,屋内便会呈现出亮堂堂的状态,在冬天的时候这里会格外暖和。


小院子在门前,面积不算大,然而摆上藤椅以及茶桌正合适。平常邻居路过时,都会停下脚步聊上几句,夸赞房子盖得非常好。这种欧式风格看上去虽然华丽,不过使用起来一点都不繁杂,每个空间规划得清楚明白,既满足了审美需求,又兼顾到了日常生活的便利之处。


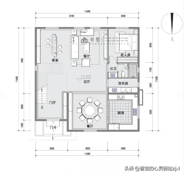
第三款这个两层小房子,开间是11.6米,这是一个长度数值,进深同样是11.6米,也是一个长度数值,它呈现出方方正正的形态。米白色的墙面进行了搭配,搭配的是暖色调的文化砖,同时还有深灰色的坡屋顶,这些组合在一起,所有的组合配色看起来会给人一种感觉,那就是让人心里暖暖的。木质的门窗框被设置了,还设置了小阳台,它们给房子增添了一些自然类型的气息,这种气息不同于那些给人感觉冷冰冰的现代建筑所具有的气息,在进入这样的房子时会让人一下子就感觉到心情放松。


家门前方的那一大片草坪,被整理得规规矩矩,要是养一只狗,它必定会最乐意于在此处来回奔跑。这类房子所具备的吸引力就在于,它并非寻求面积多大、气势多美,而是在于能让居住的人感觉舒坦。每日工作结束回到家中,目睹这充满暖意的房子,一日的劳累就消除了一半。这种具有美式乡村特色的风格,极为契合偏好安静、热爱生活的人群。

第四款有一处空间,开间长为12.6米,进深长达13.2米,于面积方面略微大些,然而整体所呈现出的感觉格外轻盈。其外墙是暖米白色的,与深棕屋顶相互搭配,线条显得干净又利落,看上去会让人觉着颇为高级。入户区域有着拱形门廊以及实木双开门,每当回到家时,都会有一种仿佛走进度假酒店的感受。楼上设置有一个大阳台,安装上了落地窗,不管是去晒太阳还是观看风景,都会特别享受。


门口的那片小院子,整饬得干干净净清清爽爽,搁置上桌椅便能够尽情享用下午茶,居于此处,每日都萌生有宛如处于度假那般的感受,这般设计将精致与舒适融合得相当不错,既不会致使他人觉着过分奢华,又于每一处都巧妙地彰显着细微的精巧考量,对于那些追寻生活品质的人士来讲,如此的房屋实在是再相宜不过啦。

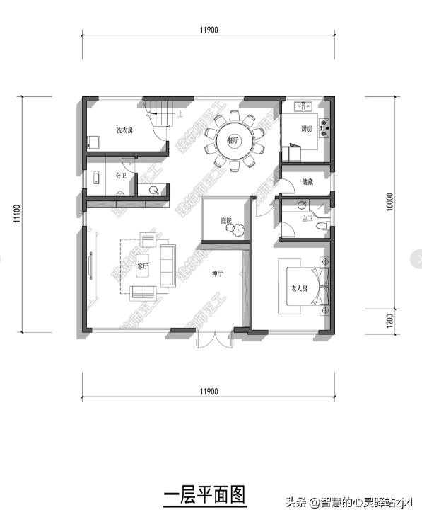
第五款存在着一套两层别墅,其开间大概为11.9米,进深大约是10米,它具备十足的现代感。其采用黑白配色,显得简洁且大气,看上去颇具格调。有着大面积的落地窗以及玻璃护栏,致使整个房子通透且敞亮,采光相当的好。这样的设计特别受到年轻人的喜爱,原因在于它不繁杂农村别墅大门,每一条线条均有着其自身的用处。

这栋房子的亮点在于顶层有个大露台,晚上抬头便能看到星星,周末能约上几个好朋友来此烧烤,其空间足够宽敞。住在这样的房子里,既显得时髦又让人感觉舒服,这完全就是年轻人梦想中的家。并且这种现代风格比较易于打理,墙面光滑,不容易积攒灰尘,节省了不少清洁方面的功夫。



第六款有着十二米开间,拥有十米进深,乃是一座呈现新中式风格的两层别墅,其外墙为米黄色,屋顶是深灰色,看起来沉稳又大气,大窗户采光极佳,屋内显得敞亮且通透,入户双开门以及精致的雕花细节,彰显出中式大宅的稳重与气派,这种风格在农村颇受喜爱,原因是大家认为这样的房子才真正具备家的味道。

居所门前之地开阔宽广,于平日里停放车辆、安置小型茶桌皆甚具有便利性。这般新中式风格之样式,既留存了传统建筑所蕴含的美感,又增添了融入现代生活的便利化设计。居于此处既有体面之感又觉舒适惬意,无论为老者还是年轻人,均可寻觅到自身所喜好之处。



第七款一种现代风格类型的两层别墅,其开间是 11.9 米,进深为 11.1 米,然而感觉会更显轻盈点儿。白色与灰色的配色,既清爽又显得高级,看上去就让人觉得挺舒服的。存在大面积的玻璃幕墙以及挑高设计,如此一来让这整个房子显得通透还有敞亮,采光程度直接达到了满格状态。有着开放式的大阳台以及错落分布的露台,不管是用于晒太阳、吹拂晚来的风,还是跟朋友进行小规模相聚,都是超级合适的。

把门朝向的小庭院整治得清清爽爽,居住于此处,每一天都仿若处于度假那般舒适。这般设计将室内跟室外的界限给模糊掉了,致使你随时随地都能够体会到自然的氛围。对于偏好开阔空间、追寻自由感的人来讲,如此的房子堪称再合适不过了。


看了数目如此之多不等的各款设计,你内心里可有了答案,倘若换成是你回到乡下盖造房屋,会更加倾向于哪一种风格,欢迎于评论区域分享你内心的想法,说不定能够对正在处于纠结状态的朋友们起到帮助作用。
相关内容:
